Продажа дома
Московская область, деревня Голиково, Звёздная улица, 98
- 650 м²
- Площадь
- 159.00 м²
- Жилая площадь
- 26.00 м²
- Площадь кухни
- 3
- Этажность
- 12 сот
- Площадь участка
52 800 000 ₽
81 231 ₽ за м²
ID объявления 12275871
Поделиться
Добавить в избранное
Продается 3-х уровневый жилой коттедж 650 кв.м с бассейном, мебелью, техникой в коттеджном поселке Family Club микрорайон Золотые купола.
Расположен на возвышенности - поселок имеет природный рельеф.
Дом полностью меблирован, продаем с мебелью.
Просторные 5 спален, шесть с/узлов. В каждой спальне установлен кондиционер.
Центральные коммуникации заведены в дом: электричество, магистральный газ (установлены два газовых котла фирмы "VIESSMANN 100"), центральная канализация, магистральная вода. ИЖС. Прописка.
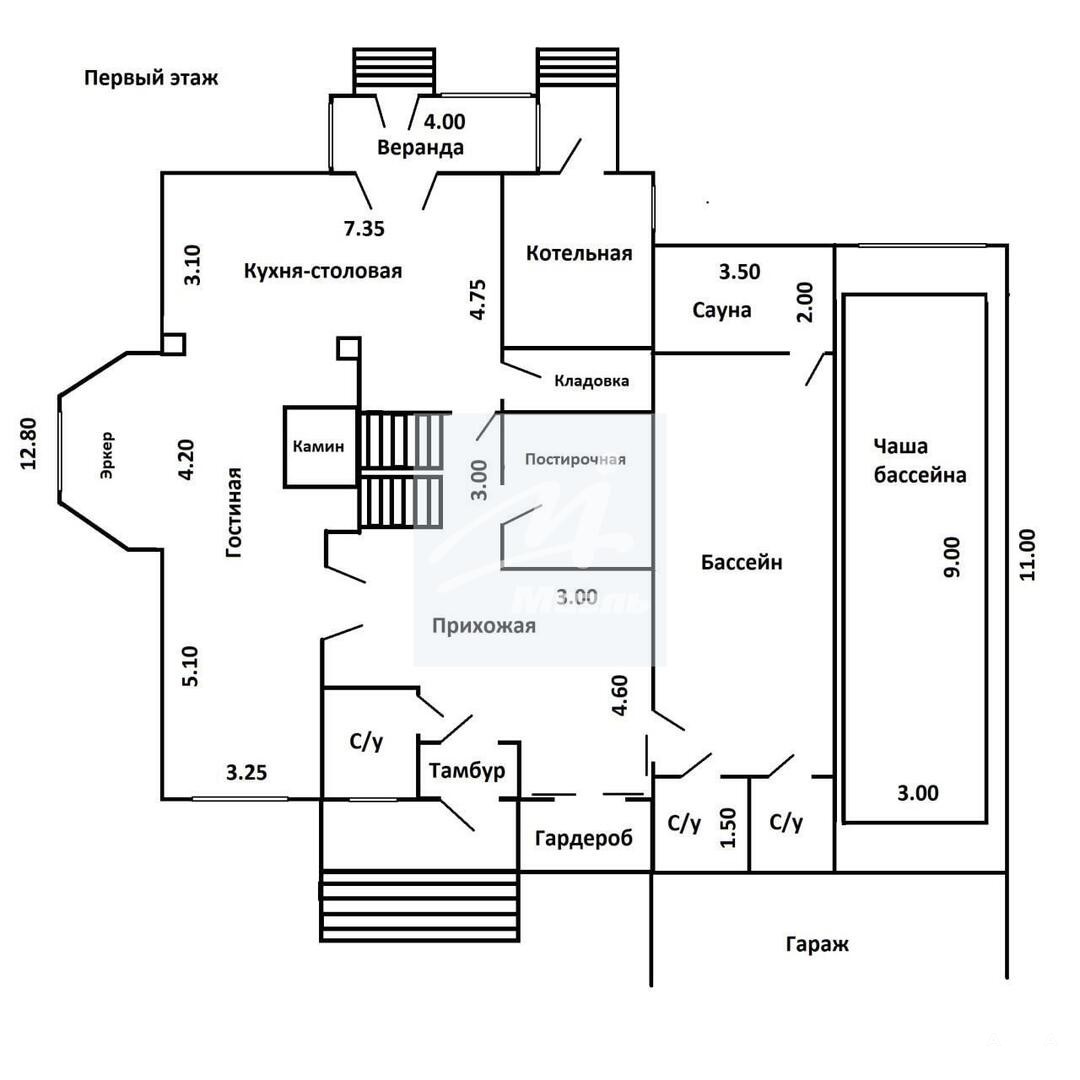
Поэтажный план:
Цоколь: бильярдная, спортзал, комната для хранения вина, два вспомогательных помещения, оборудование для бассейна, с/узел.
1 -этаж: холл, кухня-столовая с каминным залом и выходом на застекленную веранду, с/узел, гардеробная, постирочная, котельная с отдельным входом, бассейн 9х3, сауна, с/узел в помещении бассейна, гараж на 2 а/м ( на втором этаже гаража расположена полноценная 2-х комнатная квартира для круглогодичного проживания обслуживающего персонала).
2-этаж: холл, мастер спальня с гардеробной и с/узлом, две спальни (одна спальня со своей гардеробной), балкон, с/узел, рабочий кабинет, кинозал.
Мансарда: две большие спальни с большими кладовками, с/узел.
Участок 12 соток, правильной прямоугольной формы, ухожен, выровнен, газон, дорожки, хвойные деревья. Огорожен по периметру капитальным забором. На участке беседка барбекю. Есть дополнительные места под стоянку для нескольких а/м.
Охраняемый поселок, въезд по пропускам.
Инфраструктура:
на территории поселка детские дошкольные и школьные учреждения, кафе, салон красоты, игровые зоны и зоны отдыха.
В шаговой доступности фитнес центр "Art Village" с бассейном и баней, ресторан, фермерский магазин, СПА комплекс, сетевые магазины Лента, Перекресток, мебельный гипермаркет. ТЦ МЕГА Химки- 10 мин на а /м.
Транспортная доступность - по Ленинградскому и Новосходненскому шоссе на личном и общественном транспорте, маршрутные такси до ближайших станций метро.
Дата обновления: 7 декабря 2025